灘区篠原北町4丁目 新築戸建て
阪急「六甲」駅徒歩15分。護国神社近くの閑静な住宅街です。
【取得予定性能】
耐震等級3
断熱等級4
一次エネルギー消費量等級4
-
情報の見方
ローンシミュレーションこの物件を購入した場合の、月々の支払い価格の一例です。借り入れを保証するものではございません。
- 返済期間
-
- 金利
-
- ボーナス時の増額(1回分)
-
- 借入金額:
-
- 頭金:
-

- 毎月の返済額:
(※元利均等方式 金利5.00%まで ※返済年数5~50年まで入力できます)
(※ボーナスは年2回で計算しています。1000万円まで入力できます)
(※物件購入時、その他諸費用が発生する場合がございます)
物件概要
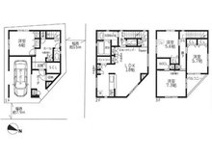
【新築一戸建】 物件番号:93604687 情報更新日:2026年04月09日 次回更新予定日:2026年04月23日所在地 兵庫県神戸市灘区篠原北町4丁目6-11 交通 間取り/詳細 3LDK+1S(納戸)/
LDK 17.7帖 1室/洋室 7.0帖 1室/洋室 6.0帖 1室/洋室 5.5帖 1室/S 5.1帖 1室建物面積(坪数) 116.91㎡(35.36坪) 価格 6,980万円 駐車場/月額料金 有/- 土地の敷金/保証金 -/- 借地料/借地期間 -/- 土地権利 所有権 土地面積(坪数) 82.75㎡(25.03坪) 傾斜地部分面積 - 路地状敷地 - 私道負担面積/セットバック -/無 高圧線下面積 - 地目/地勢 宅地/- 接道状況 一方(西 公道 5.3m) 建ぺい率/容積率 60%/150% 用途地域 第一種低層住居専用 都市計画 市街化区域 種別/構造 新築一戸建/木造 階建 2階建 築年月(築年数) 2025年 6月 (予定) 総区画数/販売区画数 -/- 向き - 現況 未完成 その他の法令上の制限 準防火地域 取引態様/引渡時期 仲介/2025年6月下旬 建築確認番号 第J24-20519号 物件番号 93604687 取引条件の有効期限 2026年04月23日 設備条件 - 都市ガス
- 公営水道
- 公共下水
- 耐震構造
- 食器洗い乾燥機
- システムキッチン
- 床暖房
取扱会社 - フロンティアハウス
- 兵庫県神戸市灘区宮山町3丁目3-43
- TEL:0120-231-316
- 兵庫県知事 (7) 第10075号
- 全国宅地建物取引業協会
賃貸不動産管理業協会会員 第05175号
まもりすまい保険 登録番号 21036282号(住宅瑕疵担保責任保険)
※地図上に表示される物件の位置は付近住所に所在することを表すものであり、実際の物件所在地とは異なる場合がございます。
物件お問い合わせ
- 掲載物件数
-
件
- 本日の更新件数
-
件
- 会員物件数
-
件
価格と住所の近い物件
- 灘区青谷町3丁目 新築戸建て
- 6,780万円 4LDK/134.05㎡
- 兵庫県神戸市灘区青谷町3丁目
- 阪急神戸本線「王子公園」駅 徒歩14分
- 灘区薬師通4丁目 新築戸建
- 6,420万円 3LDK/126.48㎡
- 兵庫県神戸市灘区薬師通4丁目
- 阪急神戸本線「王子公園」駅 徒歩13分
- 灘区神ノ木通3丁目 新築戸建て
- 5,980万円 4LDK/112.12㎡
- 兵庫県神戸市灘区神ノ木通3丁目
- 阪神本線「大石」駅 徒歩11分
- 灘区篠原南町4丁目 新築戸建て
- 5,980万円 4LDK/102.13㎡
- 兵庫県神戸市灘区篠原南町4丁目
- 阪急神戸本線「六甲」駅 徒歩11分
- 神戸市灘区上野通3丁目 戸建て
- 5,680万円 2LDK/95.58㎡
- 兵庫県神戸市灘区上野通3丁目
- 阪急神戸本線「六甲」駅






























