東灘区住吉山手7丁目新築戸建
【旧法借地権】住吉学園借地の新築戸建
ローンシミュレーションこの物件を購入した場合の、月々の支払い価格の一例です。借り入れを保証するものではございません。
- 返済期間
-
- 金利
-
- ボーナス時の増額(1回分)
-
- 借入金額:
-
- 頭金:
-

- 毎月の返済額:
(※元利均等方式 金利5.00%まで ※返済年数5~50年まで入力できます)
(※ボーナスは年2回で計算しています。1000万円まで入力できます)
(※物件購入時、その他諸費用が発生する場合がございます)
担当者のコメント 松元聡眞

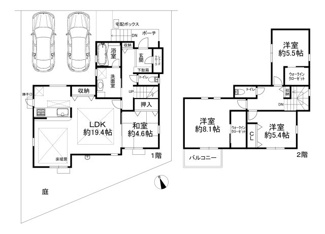
- ◎山の手の閑静な住宅街
◎2階建ての4LDK、お車は2台駐車可能
◎シューズクローク&ウォークインクローゼットが2か所あり、収納豊富♪
◎2026年5月末ごろ完成予定
物件概要
【新築一戸建】 物件番号:101233710 情報更新日:2026年02月03日 次回更新予定日:2026年02月17日| 所在地 | 兵庫県神戸市東灘区住吉山手7丁目 | ||
|---|---|---|---|
| 交通 | |||
| 間取り/詳細 | 4LDK/ | 建物面積(坪数) | 107.58㎡(32.54坪) |
| 価格 | 4,680万円 | ||
| 駐車場/月額料金 | 有/- | ||
| 土地の敷金/保証金 | -/- | 借地料/借地期間 | 10,800円/2037年03月まで |
| 土地権利 | 旧法賃借権 | 土地面積(坪数) | 164.31㎡(49.70坪) |
| 傾斜地部分面積 | - | 路地状敷地 | - |
| 私道負担面積/セットバック | -/無 | 高圧線下面積 | - |
| 地目/地勢 | 宅地/- | 接道状況 | 一方(北 公道 8.0m) |
| 建ぺい率/容積率 | 60%/200% | 用途地域 | 第一種中高層住居専用 |
| 都市計画 | 市街化区域 | 種別/構造 | 新築一戸建/木造 |
| 階建 | 2階建 | 築年月(築年数) | 2026年 5月 (予定) |
| 総区画数/販売区画数 | 2区画/- | 向き | 南 |
| 現況 | 未完成 | その他の法令上の制限 | 宅地造成及び特定盛土等規制法/高度地区/風致地区/文教地区 |
| 取引態様/引渡時期 | 専任媒介/相談 | 建築確認番号 | 第J25-20412号 |
| 物件番号 | 101233710 | 取引条件の有効期限 | 2026年02月17日 |
| 設備条件 |
|
||
| 取扱会社 |
|
||
※地図上に表示される物件の位置は付近住所に所在することを表すものであり、実際の物件所在地とは異なる場合がございます。



















